

NEW ITEM
新製品
トップ > エコノミー型ケーブルラック Zラック
エコノミー型ケーブルラック Zラック
特徴:Z・ラックは経済性がポイント
厳しい建設環境の中で安全性は勿論経済性を重視したケーブルラックの開発を多くのユーザーの皆様からご依頼を受け新たに耐食性及び外観の優れた溶融亜鉛メッキ鋼鈑によりますZラックを製造販売いたします。Zラックは溶融亜鉛メッキ鋼鈑を冷間ロールホーミング加工し特殊ネジ方式で組立ていますので、運搬中や取付作業中の表面への損傷の心配は全く無くなりました。又接続部分が金属部の直接接触になりますので、アースボンド施工は不要(※)になります。経済性を重点に考慮し、画期的なケーブルラック、Zラックを是非ご利用ください。

お値段が安い!
ぜひ、お値段の比較をして下さい。
きっと御満足なさいますよ!

傷がつかない!
運搬中取付作業中の傷を補修するのも大変な手間がかかりますネ!

アースボンドが不要です!
電気的絶縁物がありませんので接続部のアースボンド作業はいりませんヨ!
(※一部でアースボンド作業が必要な部分もございます。)
Z・ラックQ&A 質問にお答えします。
Qなぜカナフジ電工だけがZラックを製造販売できたのですか?
Aカナフジ電工のケーブルラックは全て特殊ネジ止め方式で組立てられており溶接等の構造が一切ありませんので溶融亜鉛メッキ鋼鈑の表面をそのまま利用できるZゼットラックが製造できたのです。
Q溶融亜鉛メッキ鋼鈑では錆びるのではないですか?
Aレースウェイやケーブルラックサポート類は全て溶融亜鉛メッキ鋼鈑のままで使用されていて防錆の問題は起きていませんね。当社のZゼットラックはレースウェイやラックサポートより亜鉛付着量の多い材料を使用していますので安心下さい。ただしこのZゼットラックは屋内使用専用としていますので念の為。
(端面や加工部は鉄素地が露出していますので赤錆が発生しますが、端面メッキ層がなくなるまで腐食が進行することはございません。)
QZラックは経済的と言っていますが、どのくらい経済的なのですか?
A同業他社と比較した場合、約20%の価格差があります。
物件による値引率も従来通りです。
Qいざ使用してみよう?と思っても納期的に間に合わないなどと言う事はないでしょうね?
A当社では従来の粉体塗装仕様タイプとエコガル仕様タイプ(パワフルラック)とZゼットラックを同時生産をしており、安心してご発注ください。
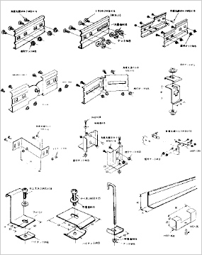
組立使用例

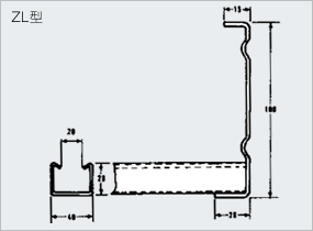
Z・ラックのタイプと部品
カナフジ電工の“Zラック”には親桁寸法H=70の》ZH型《とH=100の》ZL型《の2種類があります。桁巾は200m/mから1200m/mまで常時在庫されていますので即納OKです!


分岐ラック

パーツ
